Menu
  • Vítejte
      • O společnosti
      • Profil společnosti
      • Environmentální politika (EMS)
      • Certifikace a normy
      • Projekty EU
      • Ke stažení
      • Zajímavosti
  • Produkty
      • Kotle na biomasu
      • Tlakové nádoby stabilní
      • Výměníky tepla
      • Ohříváky vody
      • Zařízení pro úpravu vod
      • Beztlaké nádoby
      • Ostatní produkty
      • Elektrárna na biomasu
      • Pozinkované nádoby pro domácí vodárny
  • Reference
      • Investiční akce
      • Realizace vlastních technologií
      • Tlakové nádoby
      • Kotelny na biomasu
      • Konstrukce a projekce
  • Servis
  • Kontakty
      • Adresy
  • Volné pozice
      • Benefity
      • Technickohospodářské profese
      • Dělnické profese
      • Brigády
  • Uživatelské menu
      • Přihlásit se
      • Vytvořit účet
  • Czech (CZ)
  • German (DE)
  • Russian (RU)
  • Slovak (SK)
  • English (UK)
STEP TRUTNOV

STEP TRUTNOV

    • Telefon:
    • +420 499 407 407
    • Sídlo společnosti:
    • Horská 695, 541 02 Trutnov
    • Adresa výrobního závodu
    • Horská 695, 541 02 TRUTNOV 4
  • Titulní stránka |
  • Produkty |
  • Kotle na biomasu |
  • Kotle na spalování celých balíků slámy (100 - 1000kW )

Kotle na spalování celých balíků slámy (100 - 1000kW )


Typ, výkonový rozsah: STEP-KS 100 ÷ 1000 kW
 


Použití
Toto zařízení na spalování biomasy (spalování celých balíků slámy ve vertikální poloze) je určeno pro vytápění menších objektů (průmyslové objekty, obecní výtopny, zemědělské objekty, hotely, provozovny atd.). Topeniště může být upraveno též pro spalování dřevního odpadu (štěpky, kůry, pelety), obilí, pazdeří atd..

Varianty provedení kotle
Na přání zákazníka lze dodat kotle v základním provedení teplovodním, horkovodním a parním.

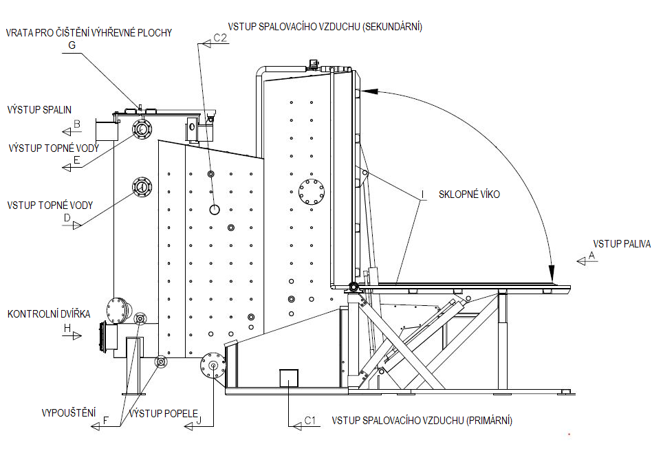
Popis kotle
Kotel STEP-KS se skládá z vodou chlazené spalovací komory, z přesuvného roštu a vertikálního spalinového výměníku. Spalovací komora je rozdělena na dvě části vodou chlazenou příčkou. Přední část slouží pro umístění balíků slámy ve svislé poloze. Součástí přední komory je chlazené sklápěcí víko, které slouží při přikládání k přemístění balíku z vodorovné polohy do svislé. Za příčkou je druhá zadní část komory, kde dochází ke spalování paliva. Spalovací komora je usazena na přesuvném hydraulicky ovládaném šikmém roštu. Dole na konci roštu je umístěn šnekový dopravník pro automatické vybírání popele. Spaliny vystupující ze spalovací komory jsou vyvedeny dolů podél pláště spalinového výměníku, kde vstupují do vertikálního spalinového výměníku. Výstupní otvor pro spaliny z výměníku se nachází nahoře a lze jej přizpůsobit poloze dle projektu kotelny. Kotel je dodáván včetně kompletní výstroje , izolace a oplechování.

Řízení a regulace
Automatická regulace výkonu je skoková s plynulým přejížděním a je určována hodnotou podtlaku v komoře a počtem cyklů pohybu roštu v závislosti na výstupní teplotě oběhové vody z kotle. Primární vzduch je přiváděn pod rošt otvory z obou boků topeniště, sekundární vzduch je vzduchovým ventilátorem přiváděn do spalovací komory, aby bylo dosaženo řádného vyhoření paliva při minimální tvorbě NOx a CO. Spalinový ventilátor na odtahu spalin frekvenčním měničem otáček reguluje nastavený podtlak v komoře a nasává primární vzduch pod rošt.

Palivo
Hranaté balíky slámy (řepková, pšeničná sláma, konopí, energetický šťovík Uteuša), max. průřezu 1250 x 800 mm a délky max. 2200 mm, o vlhkosti max. 20 %, středně slisované, popelnatost max. 5%. Obsah nespalitelných látek (prach, písek) max. 0,4%. Balíky slámy musí být celé svázané, nedeformované a vlhkost balíků musí být homogenní. Pro konkrétní průřez balíku slámy je nutné konstrukčně upravit vstupní otvor paliva případně spalovací komoru. Při změně druhu paliva musí být vždy seřízeno spalování.
Rozměr balíků lze konstrukčně přizpůsobit podle požadavku zákazníka.

Odpopelnění a čištění kotle
Popel je z topeniště vynášen automaticky pomocí příčného šnekového dopravníku umístěného v zadní části topeniště. Čištění výhřevných ploch je mechanické pomocí speciálních kartáčů a pro vybírání popelovin jsou zabudována lehce demontovatelná dvířka a vrata.

Doprava paliva; Hydraulická doprava paliva
K automatické dopravě paliva (balíků slámy) do kotle se využívá pracovní plošiny s tlačnou deskou, kterou pohybuje hydraulický píst. Pracovní plošina je začleněna do regulačního okruhu kotle, to znamená, že pracuje automaticky při požadavku na přiložení paliva do kotle. Naložení balíku slámy na pracovní plošinu probíhá např. vysokozdvižným vozíkem s vidlemi nebo podobným manipulačním zařízením případně jeřábovou dráhou, která balík ze skladu paliva převeze do kotelny a uloží na pracovní plošinu před tlačnou desku.

Při požadavku na přiložení paliva do kotle (balík slámy v kotli dohořel, signalizace čidla o prázdném prostoru v přední části spalovací komory) se sklopí sklopné víko do otevřené polohy. Po sklopení víka se automaticky balík slámy přemístí pomocí hydraulického pístu s tlačnou deskou z pracovní plošiny na sklopné víko. Následně se sklopné víko uzavře, balík slámy je v kotli přiložen ve svislé poloze a připraven pro spalování.

Parametry kotle

Výkon kotle[kW]1003501000
Max. teplota [°C] 110
Max. pracovní tlak [bar] 4,0
Účinnost kotle při jmenovitém výkonu [%] 86 - 90
Teplota spalin na výstupu z kotle [°C] 180
Spotřeba paliva* [kg.h-1] 52 104 178
Množství spalin [Nm3.h-1] 402 804 1378
Délka kotle [m] 5,1 5,3 5,5
Šířka kotle [m] 1,8 1,8 1,8
Výška kotle [m] 3,7 3,7 3,7
Hmotnost kotle [kg] 5590 5920 6410
Objem vody v kotli [m3] 1,85 2,10 2,45

*při jmenovitém výkonu a vlhkosti obilné slámy 20%

Výkres

step ks 100 1000 schema cz


Schéma dopravy paliva

transport paliva

01 – Pracovní plošina
02 – Tlačná deska
03 – Sklopné víko



Stáhnout DWG

STEP TRUTNOV © 2026
  • Vítejte
  • Produkty
  • Reference
  • Servis
  • Kontakty
  • Volné pozice
  • Uživatelské menu

Login form