Menu
  • Willkommen
      • Basisinformation
      • Profil der Gesellschaft
      • Umweltmanagementsystem
      • Zertifikation und Spezifikation
      • EU-Projekte
      • Herunterladen
      • Interessantes
  • Produkte
      • Biomassekessel
      • Stabile Druckgefässe
      • Wasserhitzer
      • Wärmeaustauscher
      • Wasseraufbereitungsanlagen
      • Drucklose Gefäße
      • Andere Komponeneten
      • Biomasse-Kraftwerk
  • Referenz
      • Investitionsvorhaben
      • Realisierung von eigenen Technologien
      • Kesselanlagen für Biomasseverbrennung
      • Konstruktion und Projektierung
  • Service
  • Kontakte
      • Adresse
  • Offene stellen
  • Czech (CZ)
  • German (DE)
  • Russian (RU)
  • Slovak (SK)
  • English (UK)
STEP TRUTNOV

STEP TRUTNOV

    • Telefon:
    • +420 499 407 407
    • Zentrale
    • Horská 695, 541 02 Trutnov
    • Betriebsstätte
    • Horská 695, 541 02 TRUTNOV 4
  • Startseite |
  • Produkte |
  • Biomassekessel |
  • Kessel zur verbrennung von holzabschnitten step-kb 600-5000 kw

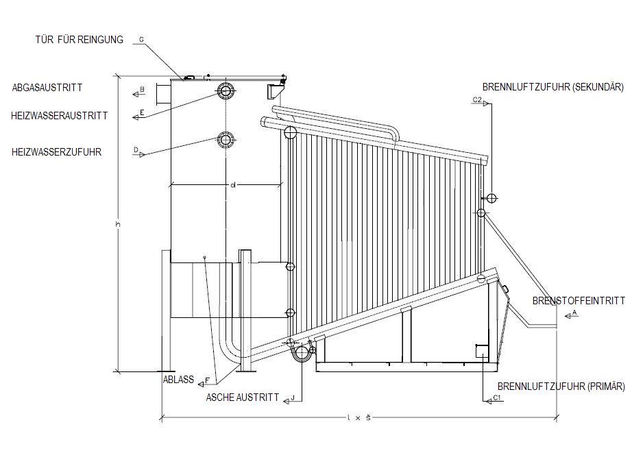
Kessel zur verbrennung von holzabschnitten step-kb 600-5000 kw


Typ, Leistungsbereich: STEP-KB 600 ÷ 5000 kW
 


Anwendung
Diese Einrichtung für Biomasseverbrennung (Gemisch von Sägespänen, Spreißelholz, Rinde, Hobelspänen, usw.) ist für das Heizen von Objekten mit größerem Wärmebedarf bestimmt (Industrieobjekte, Zentralwärmeversorgung, Gemeindeheizwerke, Landwirtschaftsobjekte, Hotels, Betriebsstätten usw.).

Varianten der Kesselausführung
Nach Kundenwunsch kann die Gesellschaft die Kessel in der Warmwasser-, Heißwasser- und Dampfgrundausführung mit/ohne Überhitzer liefern.

Kesselbeschreibung
Die Einrichtung besteht aus der Wasserrohrverbrennungskammer über dem umgestalteten verschiebbaren Feuerungsrost und dem vertikalen Heizrohraustauscher. Die Verbrennungskammer ist in einer Wasserrohrmembranausführung. Der vordere Teil ist mit einem Eintrittsschlund für Brennstoff versehen, der über den vorderen Teil des Feuerungsrostes mittels des hydraulischen Aufnehmers vorgestoßen wird. Der Eintrittsschlund wird mit Heizwasser wegen der Brennstoffvortrocknung geheizt.

Der Kessel wird mit einer Komplettausrüstung einschließlich Isolierung und Blechbekleidung geliefert. Das Ende des Feuerungsrostes ist mit einem Spiralförderer für Asche versehen. Die Abgase kommen aus der Verbrennungskammer, unten kommen sie in den vertikalen Abgaswärmetauscher. Die Austrittsöffnung für Abgase aus dem Wärmetauscher befindet sich oben und kann der Lage des Kesselanlageprojektes angepasst werden.

Steuerung und Regelung
Die automatische Leistungsregelung ist sprunghaft mit kontinuierlichem Absuchen und ist mit einem Unterdruck in der Verbrennungskammer und der Zahl der Brennstoffsätze in die Kesselfeuerung in der Abhängigkeit von der Ausgangstemperatur des Zirkulationswassers aus dem Kessel bestimmt. Der Gang des Sekundärlüfters ist nach dem Frequenzumlaufwandler in der Abhängigkeit von % O2 in Abgasen gesteuert. Der Abwärmelüfter reguliert den eingestellten Unterdruck in der Kammer im Abgasabzug nach dem Umlauffrequenzwandler.

Brennstoff
Holzbiomasse (Gemisch von Sägespänen, Spreißelholz , Rinde, Holzhackgut, Hobelspänen, usw.) mit min. Brennstoffheizwert 10,1 MJ/kg bis zur Feuchtigkeit 40% , z.B. Buche, Birke, Eiche oder Fichte. Gehalt von unverbrennbaren Stoffen (Staub, Sand) max. 0,4 %. Größe des Holzabfalls bis max. Durchmesser 40 mm, Länge bis 100mm.

Entaschung und Kesselreinigung
Die Asche wird aus der Kesselfeuerung automatisch mittels des Querspiralförderers, der in dem hinteren Teil der Kesselfeuerung positioniert ist, hinausgetragen. Die Reinigung der Heizflächen wird mechanisch mit Hilfe von Sonderbürsten durchgeführt und für das Herausnehmen der Asche sind mühelos demontierbare Tür und Tor eingebaut.

Brennstoffförderung
Siloentleerung – Das Austragen aus dem Silo wird mittels einer Wechselbewegung der axial geführten Vorschubstange durchgeführt, die mit einer größeren Zahl von Austragkeilen versehen ist. Die Vorschubstange wird mittels eines Blaszylinders betrieben. Konstruktionsmäßig wird gesichert, dass die Keile auf den Vorschubstangen bei Bewegung in der Richtung zum Überlauf in den hydraulischen Aufnehmer den Brennstoff im Silo übernehmen und bei der Bewegung in die Gegenrichtung den Brennstoff nach unten führen. Dadurch gelangt der Brennstoff zu dem hydraulischen Aufnehmer, der sich quer zur Gegenrichtung der Vorschubstange befindet, wo der Brennstoff gesammelt und in die Kesselfeuerung gefördert wird.

Hydraulischer Aufgeber – Der Aufnehmer funktioniert auf gleichem Prinzip wie das Austragen aus dem Silo und ist in den Kesselregelkreis eingegliedert, d.h. er wird in der Abhängigkeit von der Wärmeabnahme aus dem Kessel (in der Abhängigkeit von der Wasserausgangstemperatur aus dem Kessel) ein- oder ausgeschaltet.

Der Vorteil dieses Systems ist, dass es an zwei Stellen zur absoluten Absonderung des Brennstoffflusses kommt und zwar in der Wand zwischen dem Silo- und Kesselraum und zwischen der Brennstoffzuführung und Kesselfeuerung. Dazu kommt es mit dem Anhalten des Mitnehmers, der mit Schneidmessern ausgestattet ist, bei der Fertigung jedes Aufgabezyklus und auch beim Anhalten der Einrichtung unter dem gegenüberliegenden kräftigen Messer, der an den oben genannten Stellen positioniert ist.

Das gewährt nicht nur den sichersten Schutz gegen rückwirkendes Durchbrennen, sondern es kommt auch dazu, dass größere im Brennstoff befindliche Holzstücke und Rinden geschnitten und problemlos in die Kesselfeuerung gefördert werden.

Kesselparameter

Kesselleistung[kW]6001000150020002500300040005000
Max. Temperatur [°C] 110
Max. Arbeitsdruck [bar] 6,0
Kesselwirkungsgrad bei der Nennleistung [%] 86 - 90
Abgastemperatur bei dem Kesselaustritt [°C] 165
Brennstoffverbrauch* [kg.h-1] 260 433 650 866 1083 1300 1732 2166
Abgasmenge* [Nm3.h-1] 1404 2341 3511 4682 5852 7022 9364 11704
Kessellänge [m] 4,9 5,4 5,8 6,2 6,5 6,8 7,2 7,6
Kesselbreite [m] 2,1 2,1 2,1 2,1 2,5 2,5 3,0 3,0
Kesselhöhe [m] 4,5 4,5 4,7 5,1 5,4 5,7 6,1 6,5
Kesselgewicht [m] 12400 13200 14000 14800 16500 18400 20900 24100
Wasservolumen im Kessel [m3] 3,60 4,75 5,85 7,10 9,30 10,90 14,50 19,40

*bei Nennleistung und Feuchtigkeit des Holzhackguts 40% und sauberen Heizflächen.

Zeichnung

KB 600 5000kW DE

 

Schematische Darstellung der Brennstoffförderung in den Kessel

transport paliva

01 – Vorratssilo des Holzhackguts
02 – Hydraulischer Aufnehmer
03 – Hydraulisches Aggregat
04 – Zuführender Zwischenraum
05 – Beförderungsrohrleitung in den Kessel


Herunterladen DWG

STEP TRUTNOV © 2026

Login form