Menu
  • Vítejte
      • O společnosti
      • Profil společnosti
      • Environmentální politika (EMS)
      • Certifikace a normy
      • Projekty EU
      • Ke stažení
      • Zajímavosti
  • Produkty
      • Kotle na biomasu
      • Tlakové nádoby stabilní
      • Výměníky tepla
      • Ohříváky vody
      • Zařízení pro úpravu vod
      • Beztlaké nádoby
      • Ostatní produkty
      • Elektrárna na biomasu
      • Pozinkované nádoby pro domácí vodárny
  • Reference
      • Investiční akce
      • Realizace vlastních technologií
      • Tlakové nádoby
      • Kotelny na biomasu
      • Konstrukce a projekce
  • Servis
  • Kontakty
      • Adresy
  • Volné pozice
      • Benefity
      • Technickohospodářské profese
      • Dělnické profese
      • Brigády
  • Uživatelské menu
      • Přihlásit se
      • Vytvořit účet
  • Czech (CZ)
  • German (DE)
  • Russian (RU)
  • Slovak (SK)
  • English (UK)
STEP TRUTNOV

STEP TRUTNOV

    • Telefon:
    • +420 499 407 407
    • Sídlo společnosti:
    • Horská 695, 541 02 Trutnov
    • Adresa výrobního závodu
    • Horská 695, 541 02 TRUTNOV 4
  • Titulní stránka |
  • Produkty |
  • Kotle na biomasu |
  • Kotle na spalování celých balíků slámy (600-6250 kW)

Kotle na spalování celých balíků slámy (600-6250 kW)


Typ, výkonový rozsah: STEP-KS 600 ÷ 6,250 kW
 


Použití
Toto zařízení na spalování celých balíků slámy je určeno pro vytápění větších objektů (průmyslové objekty, obecní výtopny, zemědělské objekty, hotely, provozovny atd.)

Varianty provedení kotle
Na přání zákazníka lze dodat kotle v základním provedení teplovodním, horkovodním a parním.

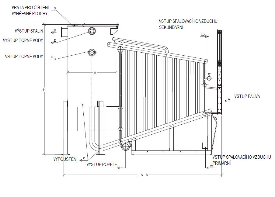
Popis kotle
Zařízení se skládá z vodotrubné spalovací komory nad upraveným přesuvným roštem a žárotrubného vertikálního výměníku. Spalovací komora je vodotrubná membránová. Přední část je opatřena vstupním otvorem pro celé balíky slámy, které jsou nad přední část roštu zasouvány do topeniště speciálním zařízením.

Kotel je dodáván s kompletní výstrojí včetně izolace a oplechování. Na konci roštu je umístěn vyhrnovací šnek pro popeloviny. Spaliny vystupují ze spalovací komory, vstupují dole do vertikálního spalinového výměníku. Výstupní otvor pro spaliny z výměníku se nachází nahoře a lze jej přizpůsobit poloze dle projektu kotelny.

Řízení a regulace
Automatická regulace výkonu je skoková s plynulým přejížděním a je určována hodnotou podtlaku ve spalovací komoře a počtem dávek paliva do topeniště v závislosti na výstupní teplotě vody z kotle. Chod sekundárního ventilátoru je řízen dle frekvenčního měniče otáček v závislosti na % O2 ve spalinách. Spalinový ventilátor na odtahu spalin s frekvenčním měničem otáček reguluje nastavený podtlak v komoře.

Palivo
Hranaté balíky slámy (sláma řepková, pšeničná, energetický šťovík Uteuša), max. průřezu 1250 x 1200 mm a délky max. 2400 mm, o vlhkosti max. 20 %, středně slisované. Obsah nespalitelných látek (prach, písek) max. 0,4%. popelnatost max. 6%. Balíky slámy musí být celé svázané a nedeformované, vlhkost balíků musí být homogenní. Pro konkrétní průřez balíku slámy je nutné konstrukčně upravit vstupní otvor paliva případně spalovací komoru. Při změně druhu paliva musí být vždy seřízeno spalování. Rozměr balíků lze konstrukčně přizpůsobit podle požadavku zákazníka.

Odpopelnění a čištění kotle
Popel je z topeniště vynášen automaticky pomocí příčného šnekového dopravníku umístěného v zadní části topeniště. Čištění výhřevných ploch je mechanické pomocí speciálních kartáčů a pro vybírání popelovin jsou zabudována lehce demontovatelná dvířka a vrata.

Doprava paliva; Hydraulická doprava paliva
K automatické dopravě paliva (balíků slámy) do kotle se využívá pracovní plošiny s tlačnou deskou, kterou pohybuje hydraulický píst. Pracovní plošina je začleněna do regulačního okruhu kotle, to znamená, že pracuje automaticky při požadavku na přiložení paliva do kotle. Naložení balíku slámy na pracovní plošinu probíhá např. vysokozdvižným vozíkem s vidlemi nebo podobným manipulačním zařízením případně jeřábovou dráhou, která balík ze skladu paliva převeze do kotelny a uloží na pracovní plošinu před tlačnou desku.

Při požadavku na přiložení paliva do kotle (balík slámy v kotli dohořel, signalizace čidla o prázdném prostoru v přední části spalovací komory) se sklopí sklopné víko do otevřené polohy. Po sklopení víka se automaticky balík slámy přemístí pomocí hydraulického pístu s tlačnou deskou z pracovní plošiny na sklopné víko. Následně se sklopné víko uzavře, balík slámy je v kotli přiložen ve svislé poloze a připraven pro spalování.

Parametry kotle

Výkon kotle[kW]6001000150020002500300040005000
Max. teplota [°C] 110
Max. pracovní tlak [bar] 6
Účinnost kotle při jmenovitém výkonu [%] 86 - 91
Teplota spalin na výstupu z kotle [°C] 160
Spotřeba paliva* [kg.h-1] 174 291 436 581 726 872 1732 2166
Množství spalin [Nm3.h-1] 1577 2629 3943 5257 6571 7886 9364 11704
Délka kotle [m] 4,9 5,4 5,8 6,2 6,5 6,8 7,2 7,6
Šířka kotle [m] 2,1 2,1 2,1 2,1 2,5 2,5 3,0 3,0
Výška kotle [m] 4,5 4,5 4,7 5,1 5,4 5,7 6,1 6,5
Hmotnost kotle [kg] 12400 13200 14000 14800 16500 18400 20900 24100
Objem vody v kotli [m3] 3,60 4,75 5,85 7,10 9,30 10,90 14,50 19,40

*při jmenovitém výkonu a vlhkosti obilné slámy 20% a čistých výhřevných plochách.

Výkres

ks 600 5000kw cz

Schéma dopravy paliva:

transport paliva

01 – Pásový dopravník
02 –Přesuvný stůl
03 – Vstupní hrdlo paliva s chlazeným uzávěrem



Stáhnout DWG

STEP TRUTNOV © 2026
  • Vítejte
  • Produkty
  • Reference
  • Servis
  • Kontakty
  • Volné pozice
  • Uživatelské menu

Login form