Kessel zur verbrennung von ganzen strohballen step-ks 600-6250 kw
Typ, Leistungsbereich: STEP-KS 600 ÷ 6,250 kW
Anwendung
Diese Einrichtung für Strohballenverbrennung ist für das Heizen von größeren Objekten (Industrieobjekte, Gemeindeheizwerke, Landwirtschaftsobjekte, Hotels, Betriebsstätten usw.) bestimmt.
Varianten der Kesselausführung
Nach Kundenwunsch kann die Gesellschaft die Kessel in der Warmwassergrund- und Dampfausführung ohne/mit Überhitzer liefern.
Kesselbeschreibung
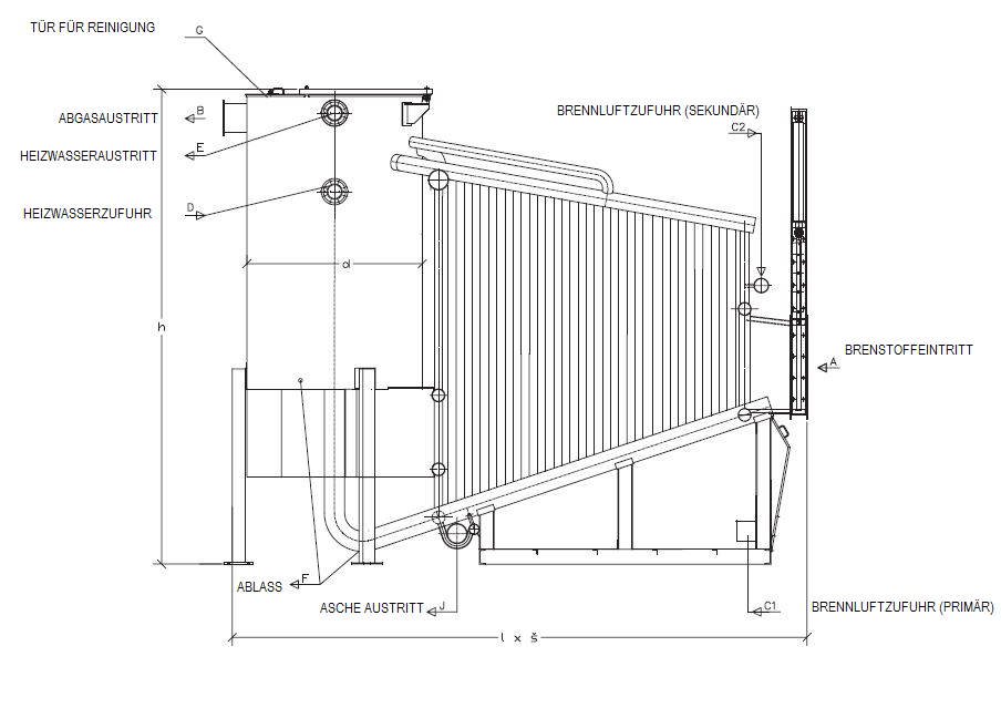
Die Einrichtung besteht aus einer Wasserrohrverbrennungskammer über dem umgestalteten verschiebbaren Feuerungsrost und dem vertikalen Heizrohraustauscher. Die Verbrennungskammer ist Wasserrohr Membran. Der vordere Teil ist mit einer Eintrittsöffnung für ganze Strohballen versehen, welche über den vorderen Teil des Feuerungsrostes mittels einer Sondereinrichtung vorgestoßen werden. Der Kessel wird mit einer Komplettausrüstung einschließlich der Isolierung und Blechbekleidung geliefert. Am Ende des Feuerungsrostes ist ein Spiralförderer für die Entaschung situiert. Abgase kommen aus der Verbrennungskammer, unten kommen sie in den vertikalen Abgaswärmetauscher. Die Austrittsöffnung für die Abgase aus dem Wärmetauscher befindet sich oben und es ist möglich ihre Lage nach dem Projekt der Kesselanlage anzupassen.
Steuerung und Regelung
Die Automatische Leistungsregelung ist sprunghaft mit kontinuierlichem Absuchen und wird mit dem Unterdruck in der Verbrennungskammer und der Zahl der Brennstoffsätze in die Kesselfeuerung in der Abhängigkeit von der Ausgangstemperatur des Zirkulationswassers aus dem Kessel bestimmt. Der Gang des Sekundärlüfters ist nach dem Frequenzumlaufwandler in der Abhängigkeit von % O2 in Abgasen gesteuert. Der Abwärmelüfter reguliert den eingestellten Unterdruck in der Kammer im Abgasabzug mittels des Umlauffrequenzwandlers.
Brennstoff
Quaderförmige Strohballen (Raps-, Getreidestroh, Hanf, energetischer Sauerampfer Uteuša), mit max. Querschnitt 1250 x 800mm und Länge max. 2200mm, Feuchtigkeit max. 20 %, mittelgepresst, Aschengehalt max. 5%. Der Gehalt von unverbrennbaren Stoffen (Staub, Sand) max. 0,4%. Die Strohballen müssen völlig gebunden, nicht verzerrt und die Feuchtigkeit von Strohballen muss homogen sein. Für einen konkreten Querschnitt des Strohballens ist es nötig, die Eintrittsöffnung für den Brennstoff eventuell die Verbrennungskammer konstruktionsmäßig anzupassen. Im Falle der Änderung der Brennstoffart muss immer eine Verbrennungsweise eingestellt werden. Das Format der Strohballen kann nach Kundenwunsch angepasst werden.
Entaschung und Kesselreinigung
Die Asche wird aus der Kesselfeuerung automatisch mittels des Querspiralförderers, der in dem hinteren Teil der Kesselfeuerung positioniert ist, hinausgetragen. Die Reinigung der Heizflächen mit Hilfe von Sonderbürsten ist mechanisch und für das Herausnehmen der Asche sind mühelos demontierbare Tür und Tor eingebaut.
Brennstoffförderung
Die Brennstoffförderung wird mittels des Bandförderers und des verschiebbaren Tisches gesichert, die im Brennstofflager untergebracht sind. Das Bedienungspersonal legt die Strohballen auf den Bandförderer z.B. mithilfe von Gabelstaplern. Der Bandförderer nimmt die Strohballen mit und legt sie auf den verschiebbaren Tisch. Dieser Tisch ist mit der Überwachungsfähigkeit von der Strohballenanwesenheit bestückt, die im Zeitpunkt der Füllung einen Hinweis zur Aufhaltung der Bandfördererverschiebung gibt. Vor jedem Vorschub des Strohballens in den Kessel wird zuerst der wassergekühlte Verschluss geöffnet und nach der Zustellung des Strohballens sofort automatisch geschlossen.
Der ganze Prozess des Brennstoffvorschubs in den Kessel, sowie die eigene Zuteilung vom Material in den Ofen verlaufen ganz automatisch auf Grund der Anforderung des Kesselsteuerungssystems.
Kesselparameter
| Kesselleistung | [kW] | 600 | 1000 | 1500 | 2000 | 2500 | 3000 | 4000 | 5000 |
|---|---|---|---|---|---|---|---|---|---|
| Max. Temperatur | [°C] | 110 | |||||||
| Max. Arbeitsdruck | [bar] | 6 | |||||||
| Kesselwirkungsgrad bei der Nennleistung | [%] | 86 - 91 | |||||||
| Abgastemperatur am Kesselaustritt | [°C] | 160 | |||||||
| Brennstoffverbrauch* | [kg.h-1] | 174 | 291 | 436 | 581 | 726 | 872 | 1732 | 2166 |
| Abgasemenge* | [Nm3.h-1] | 1577 | 2629 | 3943 | 5257 | 6571 | 7886 | 9364 | 11704 |
| Kessellänge | [m] | 4,9 | 5,4 | 5,8 | 6,2 | 6,5 | 6,8 | 7,2 | 7,6 |
| Kesselbreite | 2,1 | 2,1 | 2,1 | 2,1 | 2,5 | 2,5 | 3,0 | 3,0 | |
| Kesselhöhe | [m] | 4,5 | 4,5 | 4,7 | 5,1 | 5,4 | 5,7 | 6,1 | 6,5 |
| Kesselgewicht | [kg] | 12400 | 13200 | 14000 | 14800 | 16500 | 18400 | 20900 | 24100 |
| Wasservolumen im Kessel | [m3] | 3,60 | 4,75 | 5,85 | 7,10 | 9,30 | 10,90 | 14,50 | 19,40 |
*bei Nennleistung und Feuchtigkeit des Holzhackguts 20% und sauberen Heizflächen.
Zeichnung

Schematische Darstellung der Brennstoffförderung in den Kessel

02 – verschiebbarer Tisch
03 – Brennstoffeintrittsschlund mit gekühltem Verschluss